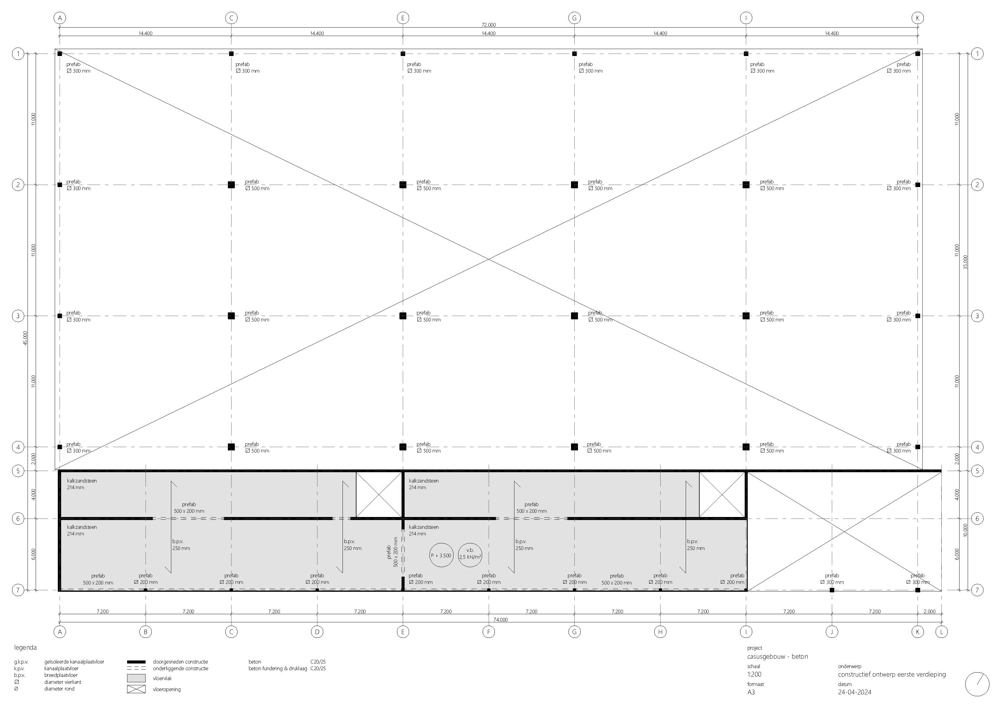
19. Concrete#
This section provides drawings of the Octatube case study building in concrete.
Or download the file here and open it in your web browser.

Fig. 19.1 Constructive design case study Octatube building in concrete.#

Fig. 19.2 Axonometry of the Octatube building in concrete.#

Fig. 19.3 Section 1 in concrete.#

Fig. 19.4 Section 2 in concrete.#

Fig. 19.5 Section 3 in concrete.#

Fig. 19.6 Section 4 in concrete.#

Fig. 19.7 Section 5 in concrete.#